Alles over

Goudenregenstraat 11

Goudenregenstraat 11

5644 PH EINDHOVEN

pageless 96 m² wonen
bed 4 slaapkamer(s)

€ 415.000,- k.k.

Kaart

Omschrijving

Karakteristiek en sfeervol woonhuis met een gezellige tuin op het zuiden. Gelegen nabij het gezellige Gerardusplein, in gewild stukje ‘Stratum’, op loopafstand van scholen, winkels en groenvoorzieningen! Ook het Parktheater is op slechts 5 minuten afstand gelegen.

Ligging:
Op zeer gewilde, kindvriendelijke woonlocatie in ‘Stratum’ gelegen, nabij het gezellige Sint
Gerardusplein, op steenworp afstand van basisscholen, kinderopvang, winkels,
groenvoorzieningen, diverse uitvalswegen, sportfaciliteiten en natuurgebied de Genneper
parken. Tevens uitstekende verbindingen met openbaar vervoer, het snelwegennet, High
Tech Campus en op 10 (fiets)minuten van het gezellige stadscentrum van Eindhoven!

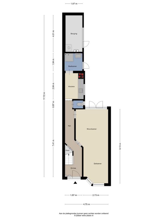
Begane grond:

Hal:
Karakteristieke hal/entree welke doorloopt naar de keuken en heeft nog de originele tegelvloer. De hal is voorzien van een meterkast (schakelkast met 6 groepen en 2 aardlekschakelaars), trap naar de 1e verdieping, trapkast en geeft toegang tot het betegeld toilet. Vanuit de hal zijn de woonkamer en keuken bereikbaar.

Woonkamer:
Sfeervolle en lichte woonkamer met een mooie Eikenhouten lamelparket vloer. Aan de voorzijde is de eethoek gesitueerd met een groot raam in de erker en een deur naar de hal. Aan de achterzijde een ruime zithoek met een deur naar de hal en openslaande deuren naar de tuin/terras.

Keuken:
Vanuit de hal is de keuken bereikbaar. Deze heeft de zelfde originele tegelvloer en geniet van volop lichtinval. De keuken heeft een nette, lichte inrichting met een composiet werkblad en is voorzien van een inductie kookplaat, een afzuigkap en een koelkast.

Douche-ruimte:
Vanuit de keuken is de douche-ruimte bereikbaar. Deze is voorzien van een douche + cabine, originele wastafel en een deur naar tuin/terras.

Achtertuin:
Sfeervolle achtertuin gelegen op het zuiden met een ruime berging en een achterom met een pad. In de berging hangt de CV-gascombiketel (Nefit Proline, november 2018) en hier bevindt zich de aansluiting voor de wasmachine.
?
1e Verdieping:

Overloop:
De overloop is voorzien van een Eikenhouten lamelparketvloer en geeft toegang tot 3 slaapkamers.

Slaapkamer 1:
Deze slaapkamer heeft een Eikenhouten lamelparketvloer, heeft een deur naar het plat dak en is gelegen aan de achterzijde van de woning.

Slaapkamer 2:
Deze slaapkamer heeft een Eikenhouten lamelparketvloer en is ook gelegen aan de achterzijde van de woning.

Slaapkamer 3:
Ruime ouderslaapkamer met Eikenhouten lamelparketvloer en is gelegen aan de voorzijde van de woning. Er zijn 2 openslaande deuren naar een klein balkon.

Vanuit de ouderslaapkamer is er een deur naar een portaal met een vaste trap naar de 2e verdieping.

2e Verdieping:
Ruime zolderkamer met een brede dakkapel.

Bijzonderheden:

- Aanpassingen en vernieuwingen aan het huis:
- Schilderwerkzaamheden houtwerk buitenzijde (2023)
- Dak aan de binnenzijde geïsoleerd (2023)
- Nieuwe riolering onder woonkamer (2021)
- Ventilatieroosters t.b.v. kruipruimte woonkamer geplaatst (2021)
- Nieuw bitumen op het balkon/erker voorzijde (2021)
- Zolder- en 1e verdiepingsvloer geïsoleerd en v.v. nieuwe houten ondervloer (2020)
(masterbedroom aan voorzijde voor de helft)
- Nieuwe zinken dakgoot en regenpijpen voorzijde 2020 en aan de achterzijde (2016)
- Ceder houten boeideel aan de achterzijde (2020)
- Nieuwe paneeldeuren met gietijzeren deurklinken (2020)
- Nieuw pannendak met nieuwe panlatten en folie (2019)
- Nieuwe hardhouten kozijnen op 1e verdieping achterzijde (2019) en aan de voorzijde nieuwe hardhouten draaidelen en dubbele deur (2016)
- Nieuwe gasleiding van gasmeter naar CV-ketel (2017)
- Nieuwe meterkast + 2-fasekabel t.b.v. inductiekookplaat (2017)
- Nieuwe riolering van woonkamer naar wasmachine m.u.v. badkamer (2017)
- Nabij het gezellige Sint Gerardusplein, winkels, scholen en uitvalswegen. Zeer goede aansluiting op snelwegennet en goed gesitueerd t.o.v.
sportaccommodaties en het stadscentrum.
- Verkoper verlangt een bankgarantie.

+ Lees meer

Kenmerken

Overdracht

Prijs

€ 415.000,- k.k.
Aangeboden sinds
04-01-2024

Status
Verkocht
Aanvaarding
In overleg
Bouw
Soort woonhuis
Eengezinswoning
Soort bouw
Bestaande bouw
Bouwjaar
1936
Soort dak
Zadeldak
+ Lees alle kenmerken

Delen