Alles over

Fransebaan 557

5627 JW EINDHOVEN

pageless 98 m² wonen
bed 2 slaapkamer(s)

€ 399.000,- k.k.

Kaart

Omschrijving

Instapklare bovenwoning met twee slaapkamers en twee balkons. Gelegen in de rustige en kindvriendelijke wijk Achtse Barrier, op korte afstand van winkels, natuur, speelvoorzieningen en uitvalswegen.

Ligging
Fransebaan 557 is gelegen in de wijk Achtse Barrier – Spaaihoef, aan de noordzijde van Eindhoven. In de directe omgeving bevinden zich een speeltuin, een bloementuin en een groenstrook met voetbalveldje direct achter de woning. Binnen enkele minuten bereik je de Boschdijk, waardoor je een goede verbinding hebt met zowel het centrum van Eindhoven als de A2/N2. In de wijk zijn verschillende winkels, scholen en voorzieningen aanwezig, en je wandelt zo richting het bosgebied van de Achtse Barrier.

Begane grond

Entree
Op de begane grond bevindt zich de entree van het appartement. Hier vind je de meterkast en een separate wasruimte met aansluiting voor wasmachine en droger. De begane grond is afgewerkt met een nette tegelvloer. Via de trap bereik je de eerste woonlaag van het appartement.

Eerste verdieping

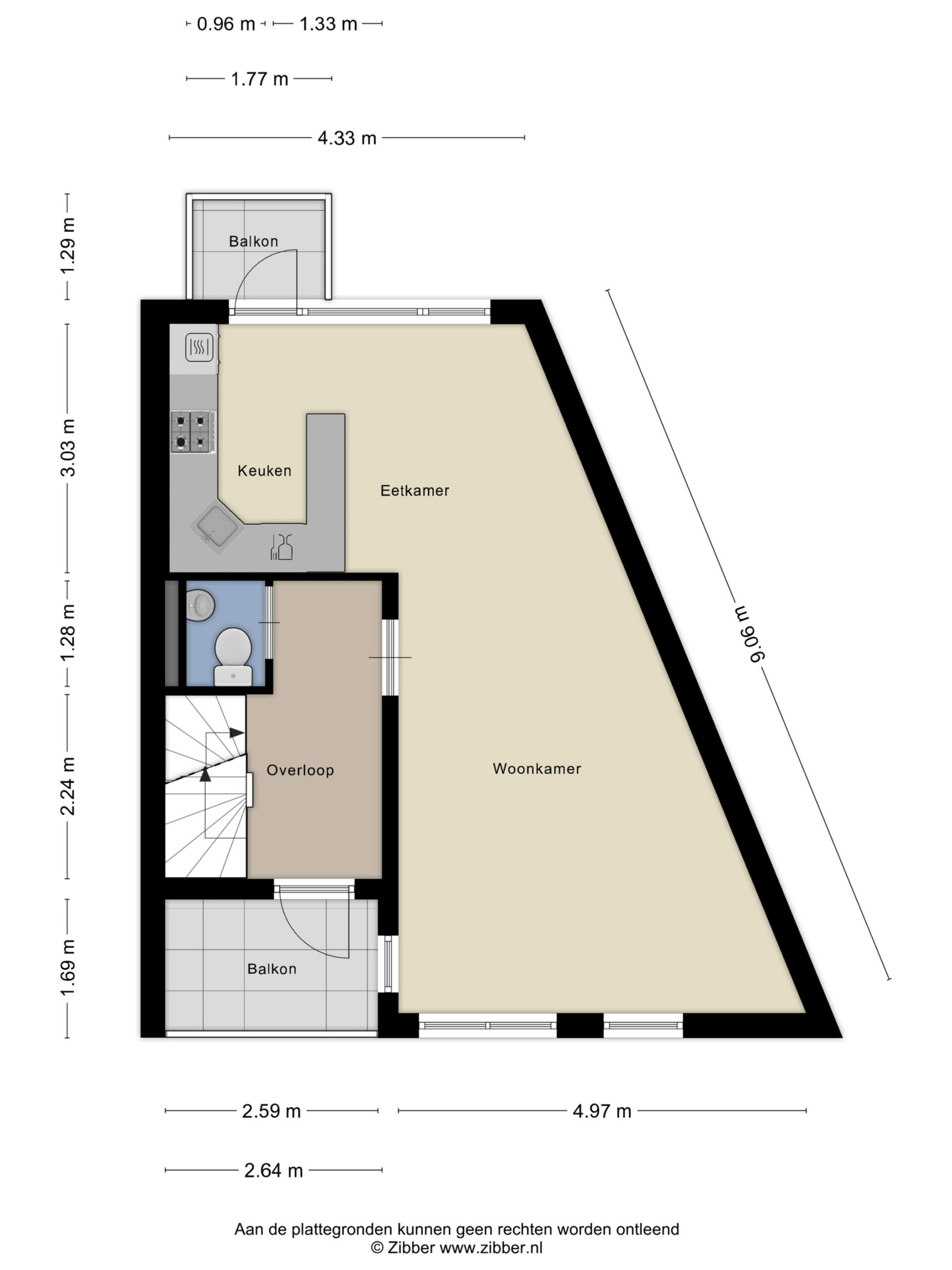
Overloop
De overloop is voorzien van een stijlvolle laminaatvloer (met uitzondering van het toilet) die doorloopt over de gehele verdieping, waardoor een gevoel van ruimte en eenheid ontstaat. Vanuit de overloop heb je toegang tot de woonkamer, het balkon aan de voorzijde, het toilet en de trap naar de tweede verdieping.

Toilet
Het toilet is deels betegeld en voorzien van een staand closet, fonteintje en natuurlijke ventilatie. De vloer is uitgerust met een nette tegel.

Balkon voorzijde
Het balkon aan de voorzijde is voorzien van een elektra-aansluiting. De deur naar het balkon is in 2024 vervangen.

Woonkamer
De woonkamer is verdeeld in een zithoek aan de voorzijde en een eetgedeelte aan de achterzijde. Grote ramen (met draaikiepramen) zorgen voor veel daglicht aan beide kanten van de woning. De vloer is in 2023 vernieuwd.

Keuken
De open keuken is uitgevoerd in een moderne, donkere kleur en beschikt over veel opbergruimte. Het schiereiland biedt extra werkruimte en zorgt voor een praktische indeling. De keuken is volledig uitgerust met een koelkast, vaatwasser, 4-pits gaskookplaat en combi-oven/magnetron. Via de keuken is er toegang tot het balkon aan de achterzijde.

Balkon achterzijde
Gelegen op het noord- oosten en met zicht op het groen. Voorzien van waterafvoer.

Tweede verdieping

Overloop
Via de overloop is er toegang tot twee ruime slaapkamers en de badkamer. In de traphal zit een extra raam voor daglicht. De vloer op deze verdieping is voorzien van laminaat (m.u.v. de badkamer).

Slaapkamer 1
Ruime slaapkamer aan de voorzijde van de woning. Voorzien van een dakkapel en een draaikiepraam.

Slaapkamer 2
Ruime slaapkamer aan de achterzijde van de woning, ook met een dakkapel en draaikiepraam.

Badkamer
De badkamer is volledig betegeld en beschikt over een dakraam, inbouwspots, een douchebak, een wastafelmeubel en mechanische ventilatie.

Vliering
Via een luik bereikbare bergzolder, ideaal voor het opslaan van spullen die je niet dagelijks nodig hebt.


Techniek en vernieuwingen:
- Kunststof kozijnen met HR++ glas
- Kunststof voordeur vernieuwd in 2022
- Cv-ketel: Intergas, bouwjaar 2018
- Goten vernieuwd in 2021
- Meterkast vervangen eind 2023
- Nieuwe laminaatvloer op woonverdieping eind 2023
- Nieuwe trapbekleding (beide trappen) eind 2023

VvE:
- De VvE betreft enkel het dak.
- Maandelijkse bijdrage: € 40,-
- Huidig saldo: ca. € 2.000,-
- Verzekering voor het gebouw: € 63,50 per maand (afschrijving)

+ Lees meer

Kenmerken

Overdracht

Prijs

€ 399.000,- k.k.
Aangeboden sinds
24-11-2025

Status
Verkocht
Aanvaarding
In overleg
Bouw
Soort appartement
Maisonnette
Soort bouw
Bestaande bouw
Bouwjaar
1981
Soort dak
Zadeldak
+ Lees alle kenmerken

Delen